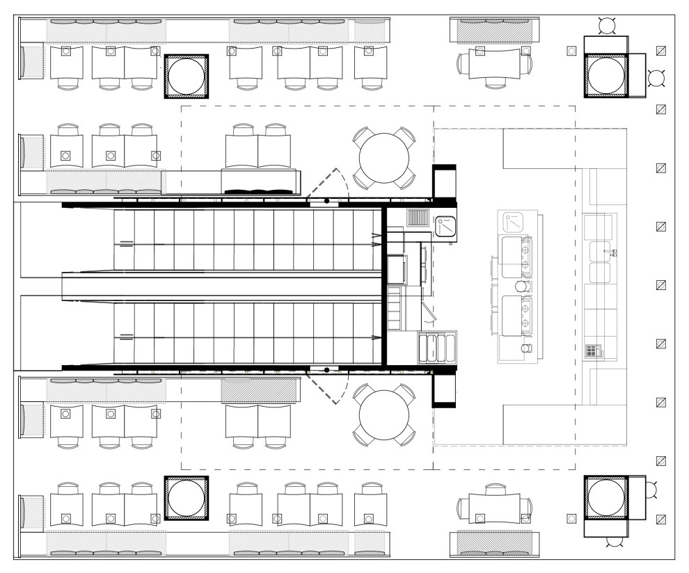
Progettazione di un Bistrò nel cuore di Milano, situato al piano -1 della Rinascente Duomo.
L’obiettivo del progetto, richiesto dal cliente, è stato quello di reinterpretare uno spazio esistente all’interno della Rinascente adattandolo all’immagine del brand Mealthie.
Attraverso un uso sapiente dei materiali, un attento studio dei colori e un’illuminazione mirata, sono state messe in risalto le caratteristiche distintive e l’identità visiva del marchio. Progetto realizzato in collaborazione con Boutique dell'Abitare per gli arredi.
